3 bedroom
2 bathroom
2 receptions
3 bedroom
2 bathroom
2 receptions
SEE THE VIDEO TOUR FOR THIS HOME
A Contemporary Classic
Immaculate, high-spec, slick and stylish are the watchwords for this stunning three-bedroom semi-detached home on the doorstep of Prestwich Village’s independent bars and restaurants and walking distance from Metrolink services to Manchester city centre.
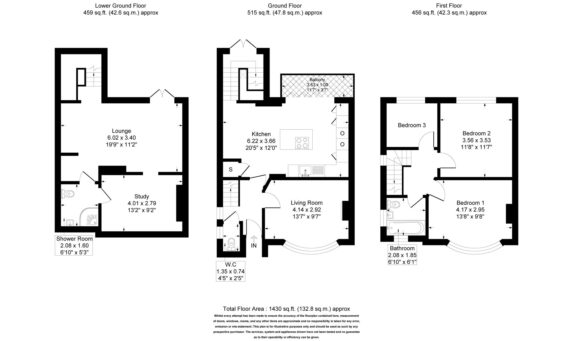
Built in the 1930s yet fully refurbished and brought bang up-to-date throughout, the house is full of surprises, from its huge, partly concealed lower ground floor, to the balcony overlooking a surprisingly substantial rear garden with scope to extend further, making it much larger and more spacious than it first appears.
Inside, numerous improvements have created an impeccable finish. For example, the current owners have stripped the house back to its brickwork, replaced the roof, rewired the property, installed a new heating system, including a new Baxi boiler with a 10-year warranty, and have plastered, insulated and decorated throughout. The balcony was added when the rear and lower ground floors were extended, while all the brand-new appliances in the beautiful and bright dining kitchen come with a manufacturer’s guarantee.
Location Perfect
Prestwich is a fantastic location with excellent transport links, schools, and amenities and has been earmarked for a £100 million regeneration in coming years to benefit local residents. Just a short walk from its heart, 532 Bury New Road sits back from the main road on a block paved road, which is residents only parking.
Set within a distinctive angular exterior with a sharply sloping gabled roofline, curved bow windows, and white render, the recessed front entrance features chequered floor tiles and a modern front door that complement the dark brick banding, bargeboards, and window frames.
A glazed door panel, transom, and side window brighten the spot-lit hallway beyond, where pristine white walls and ultra-glossy floor tiles contrast with panelled oak interior doors and a gorgeous solid oak staircase with glass balustrade. To one side, you’ll find a modern downstairs WC for convenience.
Time to Treasure
Turn right to discover a living room drenched in natural light by a massive bow window and warmed by a cosy log burner in a chimney breast painted white to match the surrounding walls. With a tiled hearth that picks up on the soft grey carpet tones underfoot, it’s the perfect spot for gathering together during the cooler months.
Meanwhile, the impressive spot-lit dining kitchen fills the back of the house, where the glossy floor tiles continue. Fitted with brand-new appliances, including two AEG ovens and a downdraft induction hob, it boasts spotless matt cashmere handleless cabinetry and a central breakfast island with LED strip lighting and white quartz worktops.
There’s a separate dining area to one side. Still, it’s equally tempting to open those big aluminium bi-fold doors onto the decked balcony, where you can enjoy a peaceful breakfast or evening drinks overlooking the garden and listening to the birds. With its variegated panels, the designer vertical radiator also adds a distinctive touch to the space.
A solid oak half-landing staircase beckons you down to the French doors opening onto the garden and to the lower ground floor, where high-quality laminate flooring flows into a hallway, a brightly lit lounge, cinema room, gaming den or studio and an adjoining office, study or snug.
There’s some in-built storage, while another set of glazed French doors reveal a lower terrace with steps rising onto the lawn, allowing for a constant breeze in the summer months. You’ll also find a high-end spot-lit shower room lined with large, glossy marble wall and floor tiles that backdrop a rainfall enclosure, a basin vanity unit with a backlit mirror above, a close-couple toilet and a snazzy D-shaped heated towel rail.
On the First Floor
Returning to the main hallway, follow the grey-fitted carpet running up the stairs, onto the landing (lit by ceiling spots and a side window), and into all three bedrooms.
The white walls and wooden panelled doors seen downstairs continue on the top floor to tie the modern aesthetic together, with the two back bedrooms (one double, one single) brightened by large windows framing the garden. The primary bedroom lies at the front and benefits from a fantastic bow window over the leafy treeline.
Finally, with its grey stone-effect tiling, marble-effect front on a vanity basin unit incorporating the toilet cistern, and chrome trim around a deep-set frosted window and a feature stained-glass window, the family bathroom feels private and luxurious. A glass-screened shower above the wide bath completes the suite.
A Garden with Potential
Overall, the front and rear gardens extend to 1430 square feet, so there’s plenty of space for children to play and adults to entertain. Modern slatted fence panels fully enclose the rear garden and separate it from the front drive for extra security and privacy, while recently planted shrubby provides a screen at the back of the lawn and will continue to mature over the coming years.
You’ll also find a terrace area to match the steps leading down to the lower ground floor and rising to the spacious driveway. With ample room to the side and rear, the new owners could explore extending even further, subject to planning approval.
On Your Doorstep
Prestwich is a town in Bury, Greater Manchester, just 3.3 miles north of Manchester city centre (c. 10–15 mins), 3.1 miles north of Salford and 4.7 miles south of Bury. It’s a popular area well-known for its thriving Jewish community, with many Jewish-run businesses, shops, and delicatessens along Bury New Road, Kings Road and Bury Old Road.
Many of our local sellers have loved frequenting Prestwich Village, which hosts delights such as Cuckoo for a weekend breakfast, All the Shapes, Remal for Lebanese cuisine, Anatolian Grill for Mediterranean eats, and OSMA – as seen in the Michelin Guide. Alternatively, pop into Wine and Wallop for great food and open mic nights.
Of course, you’ll find plenty of other options locally, from shopping precincts and supermarkets to pubs, bars, restaurants and bakeries. It’s also just a short ride by tram or taxi to Manchester, Whitefield, and Bury – or Altrincham and Didsbury within 30 mins.
Despite Prestwich’s proximity to the city centre, several open green spaces lie on your doorstep, including 490 acres to explore at Prestwich Forest Park and the championship golf course at Heaton Park, which hosts annual food, drink, and music festivals. You might also enjoy taking the dog for a walk along Prestwich Clough, a 24.12-acre Site of Biological Importance that begins at the end of Church Lane.
Getting around is also a breeze, thanks to the local Metrolink tram stations and numerous bus routes that connect the town to the wider area, several of which are within walking distance – perfect for nipping into town without the hassle of parking, where you can pick up National Rail services from Piccadilly. The nearby M60 ring road, accessed by Junction 17, also grants easy access to the motorway network surrounding Manchester, with the nearby M62 linking Leeds to Liverpool.
Within a short walk, you’ll reach the Ofsted ‘Outstanding’ St Mary’s C of E Primary School, Cloughside College (‘Good’) and The Hays Secondary School. Independent options are also available nearby, including Prestwich Prep (5 mins) and Manchester Junior Girls and Tashbar School, both 10 minutes by car.
20240510_Twilight 532 Bury New Rd, Prestwich, Manchester M25 3BD, UK_0013-Edit
Living Room
Kitchen 2
532 BURY NEW ROAD-10
Hallway 4
Hallway 2
Living Room 4
Living Room 3
532 BURY NEW ROAD-25
Kitchen 6
Kitchen
20240510_Twilight 532 Bury New Rd, Prestwich, Manchester M25 3BD, UK_0116-HDR
Kitchen 5
Balcony 2
Kitchen 14
Kitchen 7
532 BURY NEW ROAD-32
532 BURY NEW ROAD-30
Stairs to LG
Lower Ground Floor Hallway 2
Lounge 4
Lounge
Lounge 6
532 BURY NEW ROAD-14
20240510_Twilight 532 Bury New Rd, Prestwich, Manchester M25 3BD, UK_0091-HDR
Lounge 2
532 BURY NEW ROAD-54
Lounge 8
Shower Room
Study
Study 2
532 BURY NEW ROAD-48
532 BURY NEW ROAD-53
Bedroom 1 [3]
Bedroom 1 [2]
532 BURY NEW ROAD-69
Bedroom 2 [3]
Bedroom 2
532 BURY NEW ROAD-64
Bedroom 2 [2]







































