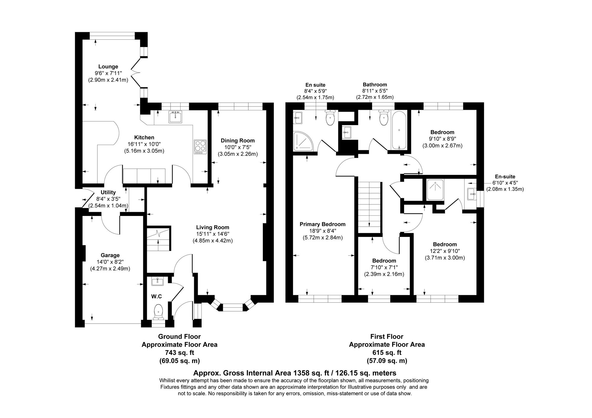
4 bedroom
3 bathroom
2 receptions
4 bedroom
3 bathroom
2 receptions
1 Dearncamme Close, Bromley Cross, Bolton, BL2 3FT
WATCH THE VIDEO TOUR FOR THIS PROPERTY
Tucked away within a quiet and well-established residential setting in Bromley Cross, this attractive four-bedroom detached home offers generous living space, thoughtful design and a level of finish that reflects the care and attention invested by the current owners. Extended and comprehensively improved over time, the house delivers comfortable, high-quality family living in a location that balances countryside surroundings with everyday convenience.
Welcome Home
The property is approached via a smart, extended driveway, newly laid in 2023, providing off-road parking for multiple vehicles and leading to an integral garage, ideal for secure parking, storage or bikes and outdoor equipment. From the outset, the house feels welcoming and well cared for. Step inside and the sense of space is immediately apparent, complemented by upgraded insulation, oak detailing and bespoke joinery that set a consistent tone throughout.
Living and Entertaining
The main living room is warm and inviting, having been redecorated and recarpeted in April 2024. A contemporary media wall forms a natural focal point, creating a relaxed space for everyday living and evenings in. The adjoining dining room has been fully panelled and refreshed at the same time, giving it a refined yet comfortable feel that works just as well for family meals as it does for entertaining guests. Feiss lighting features in the lounge, dining room and landing, subtly enhancing the atmosphere and highlighting the craftsmanship within the home.
At the heart of the home is a spacious kitchen, thoughtfully planned and expertly installed by a skilled local joiner. Designed for everyday living, it balances practicality with understated style. Porcelain tiled flooring with warm-water underfloor heating flows seamlessly into the adjoining utility room, while under-cabinet lighting adds depth and warmth. Integrated appliances include a Baumatic cooker, Rangemaster dishwasher, Baumatic fridge freezer, and a sleek five-burner black glass hob. The utility room provides additional workspace and storage, keeping the kitchen streamlined and highly function
Rest and Relaxation Upstairs
The first floor provides four well-proportioned bedrooms, offering flexibility for modern family life. The principal bedroom forms a calm and comfortable retreat, complete with its own en suite, both benefitting from warm-water underfloor heating. Bedroom two has been extensively upgraded and features bespoke fitted wardrobes with integrated LED lighting and a built-in Bluetooth sound system. Its en suite is styled as a contemporary wet room, finished with warm-water underfloor heating, full porcelain tiling, recessed lighting, bespoke cabinetry and solid surface worktops, creating a refined, spa-inspired space.
Bedroom three also benefits from fitted wardrobes, offering excellent storage while maintaining a generous feel. Bedroom four is currently arranged as a home office, but its proportions comfortably suit use as a fourth bedroom, guest room or flexible space to adapt as needs change.
The main family bathroom was refitted approximately 18 months ago and continues the theme of quality and attention to detail. It includes underfloor heating, porcelain tiles, a bespoke vanity unit and bath panel, solid surface worktops and premium Crosswater taps, delivering a clean, modern finish.
Craftsmanship and Comfort
Beyond the visible finishes, the property has benefited from extensive structural and efficiency upgrades. A full double-storey extension was completed in 2010, creating a larger family home built to a high standard. Insulation has been comprehensively improved, including cavity wall insulation, insulated plasterboard to some external walls, and fully insulated ground floor ceilings. All ceilings have been skimmed and insulated, bespoke joinery runs throughout, and the staircase has been upgraded with oak balustrades and spindles alongside newly carpeted stairs and landing.
Modern practicalities include a full house alarm system with three control keypads and a TV amplifier supplying television points to every habitable room.
Outdoor Living
To the rear, the south-facing garden is a real highlight. Landscaped a few years ago, it has matured beautifully, with established trees now providing a high level of privacy. An extended patio creates an ideal setting for outdoor dining and entertaining, while discreet exterior lighting allows the space to be enjoyed well into the evening. A useful storage shed sits to the side of the house, and the garden offers a pleasing balance of usability and low maintenance.
In the Neighbourhood
Bromley Cross forms part of South Turton, a highly regarded residential area that blends village charm with everyday convenience. Positioned within the Turton Heights development, the house is just a stone’s throw from a variety of shops, supermarkets and amenities. Local favourites for food and drink include The Retreat Bar & Grill, Earthlings, Provisions and The Slaughtered House wine bar, contributing to the area’s welcoming and sociable feel.
The surrounding countryside is a major draw, with Last Drop Village, Jumbles Country Park, the nearby sailing reservoir, Turton Golf Club and the scenic walks around Edgworth all close by. Green spaces and sports facilities are plentiful, including Longsight Park, Bolton Arboretum, The Rigbys and Bradshaw’s bowling, cricket and tennis clubs.
Families are well catered for, with a strong selection of well-regarded schools nearby. Local primaries include St Maxentius CofE Primary, Eagley Infants School and Eagley Juniors School, while both Canon Slade School and Turton School & Sixth Form College are within easy walking distance. Younger children are also well served by the Ofsted-rated ‘Outstanding’ Eagley School House Nursery.
Commuting is straightforward, with both Bromley Cross station and Hall i' th' Wood station within walking distance, offering regular rail services into Bolton and Manchester. Bus routes connect the area with Bolton, Darwen and Blackburn, while road links via the A666 and M66 provide easy access to the wider motorway network. Manchester Airport is approximately a 35-minute drive.
In Summary
This is a home that has been carefully shaped to offer spacious, high-quality and comfortable living. The generous proportions, craftsmanship throughout and everyday comforts such as underfloor heating and a beautifully finished wet room are just some of the features the current owners will miss the most. With its extensive upgrades, flexible layout and sought-after Bromley Cross setting, 1 Dearncamme Close presents a compelling opportunity to secure a substantial family home in one of Bolton’s most desirable residential areas.
Disclaimer
All descriptions, images, videos, plans and other marketing materials are provided for general guidance only and are intended to highlight the lifestyle and features a property may offer. They do not form part of any contract or warranty. Any plans shown, including boundary outlines, are for illustrative purposes only and should not be relied upon as a statement of fact. The extent of the property and its boundaries will be confirmed by the title plan and the purchaser’s legal adviser. Whilst every effort is made to ensure accuracy, neither Burton James Estate Agents nor the seller accepts responsibility for any errors or omissions. Prospective purchasers should not rely on these details as statements of fact and are strongly advised to verify all information by inspection, searches and enquiries, and to seek confirmation from their conveyancer before proceeding with a purchase.
Twilight
Living Room
Kitchen
Twilight
Living Room
Living Room
Living Room
Dining Room
Dining Room
Kitchen
Kitchen
Kitchen
Kitchen
Lounge
Lounge
Utility
Utility
Porch
Primary Bedroom
Primary Bedroom
Primary Bedroom
Primary Bedroom
En Suite
Bedroom
Bathroom
Bathroom
Bathroom
Bedroom
Bedroom
En Suite
En Suite
Bedroom
External
External
External
External
External
External





































