5 bedroom
2 bathroom
3 receptions
5 bedroom
2 bathroom
3 receptions
Lower Heightside Farm, Heightside Lane, Rossendale, BB4 8TH
SEE THE VIDEO TOUR OF THIS HOME
A Historic Rural Idyll
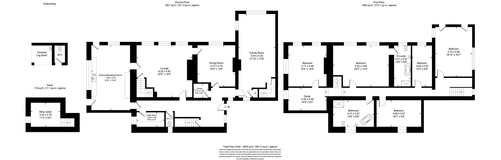
Blissfully secluded, with its own wildlife-rich field and woodland, Lower Heightside Farm lies in a slice of the Rossendale Valley surrounded by stunning, seasonally changing scenery, just down the road from Rawtenstall and easy commuter links into Manchester. One of the oldest documented farmsteads in Lancashire, dating back to the early 1800s, the farmhouse is believed to have once been a coach stop, and the character and history continue at every turn.
Exploring the ultra-spacious yet cosy and welcoming interior – designed with circular routes, interjoining rooms, and two staircases – the layout is wonderful for children and entertaining. When the current owners moved in, they inherited a wealth of high-quality craftsmanship, evident in the solid wood floors and doors, sturdy beams, inviting window seats, and carefully placed switches and detailing.
Expanding on the property’s excellent foundations, the new owners installed a HIVE-controlled combi-boiler to maximise the water pressure and create extra attic space. While the house is supplied by spring water, they also decided to install a 75m deep borehole (fitted by Danbar Drilling) to ensure a constant future water supply. In addition, the carpets downstairs were replaced with electrically heated stone tiles, while the solid wooden floors remained.
A Welcome Like No Other
Hidden on a quiet, low-traffic lane overlooking spectacular rolling hills and the village of Crawshawbooth, Lower Heightside lives up to its name. Gorgeous stone walling forms the boundary around the house, where a gated block-paved driveway leads past a vegetable garden to a sandstone-tiled terrace that complements the stone exterior.
After parking, head through the five-bar gate to find the main entrance. This opens into a bright reception hallway, where cream walls combine with tactile rendering, exposed lintel beams, window frames, skirtings, solid wood doors and architraves for instant farmhouse charm that continues in every room.
Huge heated stone tiles underfoot run into the fully fitted cloakroom on your right and into the lounge and dining room, pulling the heart of the home together. Behind a hidden stairway leading to a wine cellar with a preserved keg recess, there’s a convenient and fully tiled WC with gold fittings and a separate laundry room.
Inspired by Nature
The super-spacious breakfast kitchen lies at the end of the hallway. Here, white rendering to the brick walls and ceiling offset the sturdy beams above the windows and doors and a chimney breast housing a five-oven oil-fired AGA.
The beams complement the solid wood floorboards and beautiful stripped wood cabinetry, shelves, and cupboards, while dual-aspect windows drink in the incredible views over the tumbling hills. Other details include brass shades, solid wood doors with iron hinges opening the rear terrace, a deep Belfast sink, and space for a dishwasher and drinks fridge.
Another door opens into an adjoining lounge, where the charming rough textures are softened by yet more dramatic beams and exposed woodwork, and an open stone fireplace with a wood burner throws out warmth. Triple windows frame the idyllic countryside beyond, with two built-in wooden window seats providing the perfect vantage point.
Carry on to find a similarly decorated beamed dining room – a cosy yet spacious place for more formal get-togethers, Sunday roasts, and Christmas dinners lit by a broad window facing the garden. The family room fills the rest of the floor. Brightened by triple-aspect windows and boasting exposed floorboards to echo the beams, it’s the obvious setting for playing with the children or hosting a party. The wood burner brings warmth and creates a lovely focal point, especially during the festive season when the room is filled with lights and decorations.
Sleep Soundly
You can access the long, carpeted central landing via the lounge and dining room staircases for an easy route to bed. On the first floor, you’ll discover four large double bedrooms with fitted carpets, charming sloped ceilings, beams, and large windows capturing the beauty of the Rossendale Valley.
The massive vaulted master also benefits from an oversized beamed en suite lined with glossy floor and wall tiles, which form a splashback for a roll-top bath, a walk-in shower, a tall chrome heated towel rail, a basin, and a toilet.
At the end of the landing, you’ll also find a study with views of grazing sheep. Adjoining one of the bedrooms, it would make an excellent dressing room, nursery, or playroom. Finally, in the fully tiled family bathroom, you’re met with another roll-top bath, modern sanitaryware, and a walk-in shower beside a white heated towel rail.
A Slice of Countryside
Tucked away in around 2.5 acres of grounds, the farmhouse blends in with the bucolic scenery, fields, and moorland rolling into the distance. Hugged by traditional stone walling, the sandstone terrace creates a lovely sun trap for al fresco meals, evening drinks, and parties backdropped by those incredible, ever-changing views. It’s also a great area for kids to ride bikes and play.
To one side, a five-bar gate leads to a useful block-paved patio area by the front door, while on the other side of the terrace, you’ll discover a fantastic kitchen garden packed with raised vegetable beds and netting rollers. Nearby is a covered log store and outdoor WC.
Meanwhile, neat hedgerow screens stone steps descending to a large grassy area and an adjoining field – both frequently visited by deer. Beyond this, the private wood has mown pathways and a firepit area. The owners are happy to sell the 8x3m walk-in, fox-proof chicken house and run by separate negotiation.
Throughout the year, the grounds come alive with wildlife, from rabbits and badgers to foxes, deer, frogs and birds of prey. We’re also told that neighbours have made many improvements to the adjoining land and fencing, improving the overall setting.
On Your Doorstep
Crawshawbooth is a small village on the edge of the Pennines filled with pubs, restaurants, and useful shops at its heart – check out Lizzies Bar and Thyme Cocktail Bar for evening drinks. Part of the Forest of Rossendale, which consists of the steep-sided valleys of the River Irwell and its tributaries, its largest centre is Rawtenstall – a buzzing market town just a few minutes’ drive away that has been earmarked for a ten-year £20 million Government investment.
Here, independent shops and boutiques, delis, cafés, and restaurants line the cobbled streets, but there’s also a good range of major supermarkets/discount chains, an M&S Food Hall at the nearby New Hall Hey Retail Park, and a useful NHS hub. Our local sellers also recommend East Lancashire Railway (where you can watch or ride on the lovely steam trains to Bury via Ramsbottom) and the local library, leisure centre, gym, and garden centres.
Furthermore, the semi-rural location lends itself to outdoor pursuits – step out of your gate to begin a country walk leading up onto the moors. Many characterful towns (e.g. Bacup, Ramsbottom, Todmorden, Hebden Bridge, and Accrington) and the Ribble Valley/Forest of Bowland are just a short drive away.
Of course, you can explore the wider area to find more peaceful retreats, such as Haslingden Grane, The Pennines, the Healey Dell Nature Reserve and Rooley Moor in Rochdale, the River Irwelland Peel Tower on Holcombe Moor.
To travel and commute around the wider region, hop onto the A56/A682 or the M66 for quick journeys to Manchester, Bury, Burnley, Accrington, Skipton, Preston, Leeds, and Bradford. National railway connections run from nearby Accrington station, but you’ll also find the X43 Witch Way bus into Manchester at the bottom of the hill, running a few times an hour.
Beyond this, you’ll have plenty to do and see in the wider area. Some local cultural highlights include The Whittaker Museum & Art Gallery in Whittaker Park (with café, events, workshops and films); The Helmshore Textile Museum; local brass bands; a Carnegie library, the Orwell Valley Sculpture Trail, and The Halo and Singing Ringing Tree Panopticons.
Active families will also love being within striking distance of Ski Rossendale dry ski slope, Marl Pits Leisure Centre, Golf Kingdom, Marls Pits Garden Centre, The Water Ski Academy at Cowm Reservoir, and the sailing club at Clowbridge Reservoir.
Local Ofsted-rated ‘Good’ primaries include Crawshawbooth Pre-School and Primary School, with Bright Futures Nursery School rated ‘Outstanding’. You’ll also find many alternatives nearby, including Bacup and Rawtenstall Grammar School, the Ofsted ‘Outstanding’ Accrington and Rossendale College, and a specialist autism school.
20240812-2111_twilight - Lower Heightside Farm, Heightside Lane, Rossendale, BB4 8TH_0078-Edit
Lower Heighside Farm-124
Lower Heightside Farm-43
Lower Heightside Farm-18
Lower Heightside Farm-4
Lower Heighside Farm-72
Lower Heightside Farm-21
Lower Heightside Farm-46
Lower Heightside Farm-45
Lower Heightside Farm-8
Lower Heightside Farm-10
Lower Heightside Farm-14
Lower Heighside Farm-65
Lower Heightside Farm-12
Lower Heightside Farm-15
Lower Heightside Farm-53
Lower Heightside Farm-51
Lower Heighside Farm-83
Lower Heightside Farm-17
Lower Heightside Farm-41
Lower Heightside Farm-6
Lower Heightside Farm-28
Lower Heightside Farm-25
Lower Heightside Farm-23
Lower Heighside Farm-78
Lower Heightside Farm-33
Lower Heightside Farm-32
Lower Heightside Farm-50[43]
Lower Heightside Farm-40
Lower Heightside Farm-37
Lower Heightside Farm-36
Lower Heightside Farm-20
Lower Heightside Farm-27
Lower Heightside Farm-22
Lower Heightside Farm-19
Lower Heightside Farm-35
Lower Heighside Farm-76
Lower Heightside Farm-26
Lower Heighside Farm-79
Lower Heightside Farm-39







































