5 bedroom
3 bathroom
3 receptions
5 bedroom
3 bathroom
3 receptions
SEE THE VIDEO TOUR OF THIS HOME
An Idyllic Setting
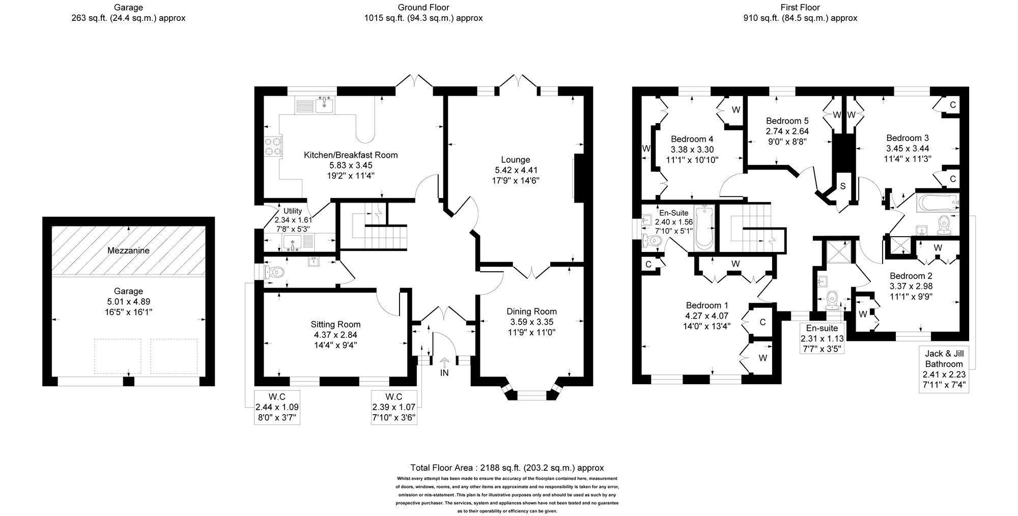
Nestled on a generously sized plot with a substantial double garage, this contemporary five-bedroom, three-bathroom house boasts three versatile reception rooms, a large dining kitchen, and lovely front-and-rear gardens.
The house is located just off Chapeltown Road, minutes from Jumbles Country Park, on a peaceful cul-de-sac populated with detached red-brick homes. Well set back from the street behind a front lawn edged with shrubs and wooden sleeper planters, it offers plenty of parking space on the tarmacked driveway. There’s also lots of room in the detached double garage, which features a mezzanine floor to maximise storage.
Come On In
From the drive, steps lead up to an entrance flanked by a decorative gabled frontage. Lit by the windows behind, the internal porch has practical flooring and a fitted doormat, so you can remove boots before stepping through the bespoke etched double-glazed doors.
The hallway is large, bright, and inviting. Its coved walls are painted cream, and soft carpeting runs up the stylised square oak staircase. You’ll find a two-piece WC by the stairs with modern tiling and sanitaryware.
Dine & Unwind
Continue through into the kitchen at the back of the house. Lit by ceiling spots, under-cabinet lights, a casement window with a fitted blind, and French doors to the garden, it’s a spacious social hub complete with a breakfast bar and dining area.
Recently refurbished, it features a new stone worktop to the wrap-around stripped wood cabinetry and new integrated appliances, including a 1.5-bowl sink, Neff double oven and hob, and a built-in dishwasher and fridge freezer. The tiled floor and splashback continue in the utility, which has cabinetry to match the kitchen and space for a washing machine and tumble dryer, along with an additional sink and access to the side.
Beside the kitchen, you’ll discover a big lounge, where a coved ceiling, stylish lights to the ceiling roses and walls, a fireplace with stone mantelpiece, and two-tone ‘chocolate’ and cream paintwork combine for an elegant feel. French doors and windows frame a view over the garden, while the character features and warm carpet run through the double doors into an adjoining dining room brightened by a bay window.
Across the hall, you’ll find a third reception room with two front-facing windows, fitted blinds, and similar décor. This could easily be used as a snug, study, or playroom. However, there’s also potential to reconfigure the downstairs by integrating the lounge into the kitchen to create an impressive open-plan breakfast kitchen and living area.
Ample Accommodation
Follow the beautiful oak half-landing staircase upstairs. The coved ceiling and neutral carpet flow from the bright and airy landing into five bedrooms, all painted crisp white and containing plentiful fitted wardrobes proportional to their size.
With two large front-facing windows, the master is particularly bright and enjoys access to a private en suite lined with stone-effect format wall tiles and a grey carpet. Lit by another big window, it contains a full-sized bathtub with an overhead rainfall shower attachment and a modern pedestal basin and loo.
Bedroom two also has a part-tiled, three-piece shower room, while a spacious bathroom with a separate bath and shower enclosure serves the remaining two garden-facing doubles and a single currently being used as an office. The office/fifth bedroom also has a separate phone line and Wi-Fi – ideal for home working. Back on the landing, you’ll find an in-built cupboard and a hatch to a part-boarded attic for additional storage.
Step Outside
Apart from the well-maintained and planted front lawn, the property enjoys a fully enclosed rear garden screened by neighbouring mature trees and shrubs nestled behind tall wooden fences. The terrace has been extended to create lots of space for parties and al fresco dining, with the raised patio in the corner of the lawn designed to capture the sunshine across the seasons.
You’ll also find a useful wooden shed or summerhouse for your garden tools and outdoor furniture, with rooms for bins and bikes down the gated side path linking back to the driveway and double garage.
Out & About
Bromley Cross is a residential area of South Turton in Bolton, Greater Manchester, on the southern edge of the West Pennine Moors. Peppered with delightful eateries, cafés and restaurants, the village was dubbed one the most family-friendly locations in the country a few years ago, thanks to its low crime rates, schools, and local highlights.
Some places to note include Last Drop Village, which hosts a hotel and spa, craft shops, and much more; Jumbles Country Park (walking distance) and the sailing club at the nearby reservoir; Turton Golf Club; and the walks around Edgworth.
A seven-minute stroll will also take you to Bromley Cross station on the Ribble Valley line, which is perfect for commuting to Bolton and Manchester (c. 30 minutes). Egerton Edgworth, Bradshaw, and Harwood are all easily accessible.
Near the station, you’ll discover a range of good schools, including Eagley Infants & Juniors and Turton School & Sixth Form College. Canon Slade CofE Secondary and Thornleigh Salesian College (Roman Catholic) are highly regarded, while the independent Bolton School is just a few miles away.
3 HOLKAR MEADOWS-136
3 HOLKAR MEADOWS-145
Hallway 2
Lounge 4
Hallway 5
Lounge
Lounge 2
Kitchen 7
Kitchen 9
Kitchen 5
Kitchen
Kitchen 6
Kitchen 3
3 HOLKAR MEADOWS-22
3 HOLKAR MEADOWS-19
Utility Room
Sitting Room 2
Sitting Room 4
Dining Room
Dining Room 2
3 HOLKAR MEADOWS-26
Downstairs WC 2
3 HOLKAR MEADOWS-3
3 HOLKAR MEADOWS-5
Landing
Bedroom 1
Bedroom 1[2]
Bedroom 1 [4]
Bedroom 1 En Suite [2]
Bedroom 1 En Suite [3]
Bedroom 1 En Suite
3 HOLKAR MEADOWS-30
Bedroom 3
Bedroom 3 [2]
Bathroom (off bed 3 and landing)
Bedroom 2[2]
Bedroom 2[3]
Bedroom 2
En Suite Bedroom 2
Bedroom 4







































