6 bedroom
2 bathroom
3 receptions
6 bedroom
2 bathroom
3 receptions
29 Albert Road, Bolton, BL1 5HF
WATCH THE VIDEO TOUR FOR THIS PROPERTY
Space, Character & Connection
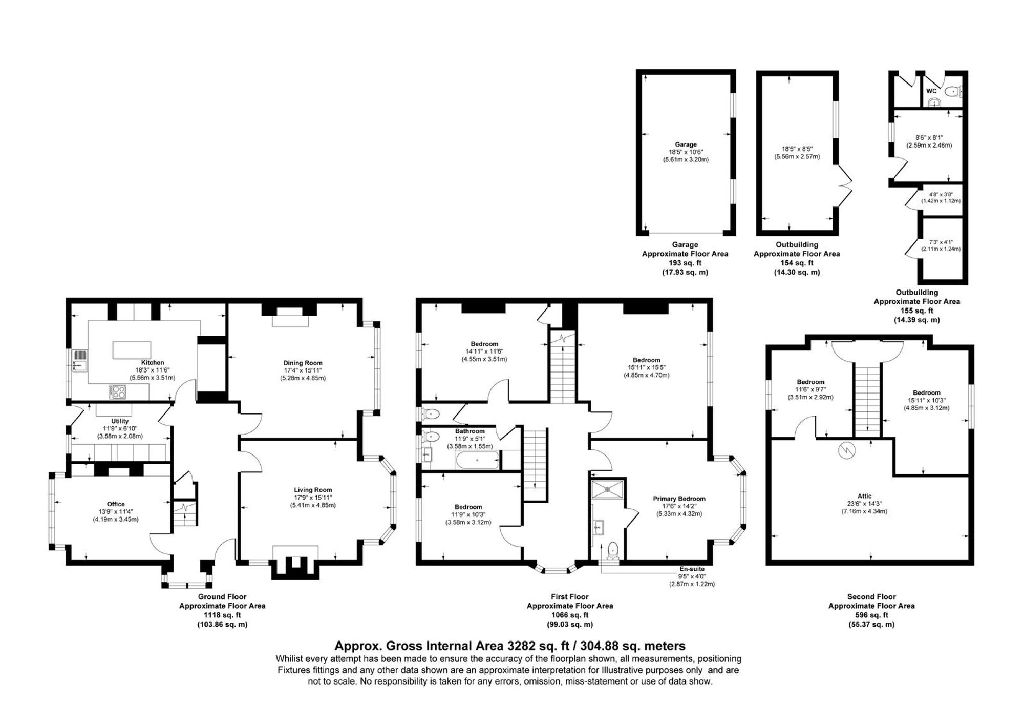
Set along one of Bolton’s established residential roads, this substantial six-bedroom semi-detached period home offers generous, flexible living space with a wealth of original character, extensive outbuildings and a private southwest-facing garden. Well placed for excellent schooling, strong transport connections and easy access to open countryside, the property combines scale, charm and practicality in equal measure, making it an exceptional family home.
With its generous proportions, flexible layout across three floors and additional space beyond the main accommodation, the home is particularly well suited to family life and offers excellent potential for multi-generational living.
Welcome Home
Approached from Albert Road, the property immediately presents a sense of scale and period elegance, set back behind a low brick boundary wall with a paved driveway providing valuable off-road parking. The driveway runs alongside the house, offering further access to the rear and additional parking beyond, a rare and practical feature for a home of this style and era. Step through the front door into a striking entrance hallway where high ceilings, original coving and beautifully re-leaded stained-glass panels set the tone for the accommodation beyond. Encapsulated within hardwood double-glazed windows to the front and side, the stained glass allows natural light to flood the space while preserving the home’s historic character.
Underfoot, the patterned Amtico LVT floor makes an immediate statement, complementing the crisp white panelling and enhancing the sense of craftsmanship and symmetry. A staircase rises gracefully from the hall, finished with a carpeted runner and painted balustrade, drawing the eye upward and reinforcing the generous proportions of the space. Additional stained-glass door lights and traditional internal doors lead off the hallway, while thoughtful details such as the original joinery, deep skirting boards and period features combine to create a welcoming yet impressive introduction to the home.
Versatile Living Spaces
To the front of the house, two generous reception rooms offer elegant and flexible living spaces, both defined by their scale, high ceilings and striking bay windows fitted with beautifully detailed stained glass. These broad windows draw in an abundance of natural light while providing a sense of privacy and period charm, and together they create a wonderful symmetry across the front elevation.
The main living room provides a warm and inviting retreat, arranged around a wood-burning and coal stove installed by Burning Desires of Preston, which sits within a dark-toned fireplace recess and creates a cosy focal point for evenings in. Original floorboards run beneath soft furnishings, while the bay window frames the outlook to the front, allowing daylight to pour in throughout the day and accentuate the generous proportions of the room.
Opposite, the formal dining room mirrors the elegance and scale of the living room and is equally impressive. Once again, a large bay window with stained-glass detailing floods the space with light, making it an ideal setting for both everyday family meals and larger gatherings. A second stove adds warmth and atmosphere, while the depth of the room allows for a full dining table alongside additional seating, making it a sociable and versatile space for entertaining.
Set to the rear of the house, the study enjoys a quieter position overlooking the garden, offering a peaceful environment for home working, reading or creative pursuits. Large windows provide leafy views and excellent natural light, ensuring the room feels connected to the outdoors while remaining comfortably separate from the main living areas.
Completing the ground floor, a practical utility room supports busy family life with excellent storage and workspace. Designed to accommodate two washing machines, a dryer and an additional larder fridge, it keeps everyday tasks neatly out of sight, while also providing direct access to the outside for added convenience.
The Heart of the Home
Set to the rear of the house and enjoying a pleasant outlook to the garden, the kitchen forms a practical and sociable hub for everyday family life. Installed by a respected local specialist, the Schüller cabinetry is finished in sleek, contemporary tones and paired with quartz worktops, under-cupboard LED lighting and recessed ceiling spotlights, creating a bright and functional space that remains sympathetic to the character of the home. Underfoot, hard-wearing Forbo Nairn linoleum has been laid over a levelling compound, providing a durable and comfortable finish suited to a busy household.
A large rear window sits above the sink, drawing in natural light and offering views to the garden, while the layout provides excellent storage and preparation space. The kitchen is exceptionally well equipped, featuring a comprehensive range of integrated appliances including Siemens ovens and steamer, a Bosch dishwasher installed in 2025, Liebherr fridge and freezer, a Siemens induction hob with Rangemaster extractor, and a Quooker Pro3 Nordic boiling-water tap fitted in 2024. A freestanding island unit adds further workspace and flexibility, easily repositioned to suit different needs, whether for informal dining, preparation or entertaining.
Retreat Upstairs
The staircase rises to the first floor, arriving at a bright and spacious central landing where natural light is drawn deep into the house via an elegant stained-glass window on the half landing, a feature that reflects the home’s period heritage and immediately sets the tone for the accommodation above.
The first floor offers four well-proportioned bedrooms, all enjoying generous ceiling heights and a calm, neutral finish that enhances the sense of space and light. Two of the bedrooms benefit from fitted wardrobes and shelving, while the remaining rooms provide excellent flexibility for freestanding furniture, making this level well suited to family living, guests or home working.
One of the bedrooms is currently arranged as a dressing room, fitted with extensive open shelving and storage, but remains a full and versatile bedroom in its own right. The principal bedroom is served by a smart en-suite shower room, while the remaining bedrooms are supported by a well-appointed family bathroom, both finished to a consistently high standard with quality fittings and materials. The family bathroom also features a full-sized bath with shower over, creating a practical and comfortable space for everyday use. A separate WC is also located on this floor, providing additional convenience for family living and guests.
The second floor continues the theme of flexibility, offering two further generous double bedrooms alongside a large central attic space. This level is ideal for older children, visiting guests or those seeking a degree of separation for home working or creative use, while still feeling fully connected to the rest of the house.
Outdoor Living
Outside, the southwest-facing rear garden is a real highlight, generous in scale and not overlooked, with a layout that has been carefully arranged to support both everyday family life and larger social gatherings. Defined areas for seating, dining and lawn create a garden that feels balanced and practical, offering flexibility for a variety of uses throughout the year.
A broad paved terrace adjoining the house provides an ideal setting for outdoor dining and entertaining, while the lawned central section offers ample space for children to play or for further landscaping. Additional seating at the far end of the garden creates a more secluded, sociable spot, perfect for summer evenings and informal gatherings. The overall size and layout of the plot also offer clear scope for extension, subject to the necessary consents, allowing future owners the opportunity to further enhance or reconfigure the accommodation if desired.
Beyond the garden, an extensive range of substantial outbuildings provides exceptional versatility, far exceeding what would typically be expected. These have benefited from upgraded lighting, power, new security doors and windows, and include an external WC, making them well suited to use as workshops, hobby spaces, storage or potential home-working areas. The garage has also been enhanced with new windows and updated services, adding to the overall practicality of this space.
Parking is exceptionally well catered for, with space for three vehicles at the front of the house, two at the rear and additional garage parking. Twin exterior power sockets are positioned at the front of the property, while gated access to the rear garden enhances both security and convenience.
In the Neighbourhood
Bolton sits in the foothills of the West Pennine Moors, around 10 miles from Manchester city centre, offering a well-balanced lifestyle with town amenities and easy access to open countryside. The area is conveniently placed for the regional motorway network via the A666, with onward links to the M61 and M60 connecting you to the North West and the major hubs of Manchester and Liverpool. For rail travel, Bolton railway station provides regular services into Manchester in around 20 minutes, with longer-distance routes to London Euston taking just over two and a half hours.
The surrounding area is particularly well regarded for food and drink, with a strong selection of well-established local eateries close by. Popular favourites include The Victoria Inn and Bob’s Smithy, alongside Provisions and Tosoro, creating a lively yet relaxed dining scene on your doorstep.
Everyday amenities are well catered for, with health and leisure facilities, major supermarkets and discount stores close at hand, as well as multiple retail parks offering a wide range of services. Middlebrook Retail & Leisure Park is also within easy reach by car, providing further shopping, dining and entertainment options.
The area is also ideal for those who enjoy the outdoors, with many sought-after destinations within the nearby moorland. Doffcocker Lodge, Rivington Pike, Walker Fold and High Rid Reservoir are all just a short drive away, offering excellent walking, cycling and recreational opportunities.
The neighbourhood is particularly popular with families, thanks in large part to its strong educational offering. The highly regarded independent Bolton School lies just a few minutes away and is within walking distance, offering a co-educational nursery and infant school alongside single-sex junior and senior schools, including sixth forms. A number of well-regarded state primaries and secondaries are also within easy reach, including Abacus Pre-School Nursery and Markland Hill Primary, both within walking distance and Ofsted-rated ‘Good’ and ‘Outstanding’, while Clevelands Preparatory School is only a short drive away.
Disclaimer
All descriptions, images, videos, plans and other marketing materials are provided for general guidance only and are intended to highlight the lifestyle and features a property may offer. They do not form part of any contract or warranty. Any plans shown, including boundary outlines, are for illustrative purposes only and should not be relied upon as a statement of fact. The extent of the property and its boundaries will be confirmed by the title plan and the purchaser’s legal adviser. Whilst every effort is made to ensure accuracy, neither Burton James Estate Agents nor the seller accepts responsibility for any errors or omissions. Prospective purchasers should not rely on these details as statements of fact and are strongly advised to verify all information by inspection, searches and enquiries, and to seek confirmation from their conveyancer before proceeding with a purchase.
Twilight
Dining Room
Kitchen
29 ALBERT ROAD-53
Hallway
Living Room
Living Room
Living Room
Living Room
Hallway
Dining Room
Dining Room
Dining Room
Kitchen
Kitchen
Kitchen
Kitchen
Utility
Study
Hallway
Hallway
Landing
Bedroom
Bedroom
Bedroom
En Suite
En Suite
Landing
Landing
Bedroom
Bedroom
Bethroom
Bedroom
Bedroom
Bedroom
Bedroom
Landing
Bedroom
Bedroom
Bedroom
External
External
External
External
External
External
External
External
External
Twilight
Twilight
Twilight
Twilight
Twilight
Aerial
Aerial























































